2019. március 6. (szerda) 10:02
A Sajószentpéteri Művelődési és Sportközpont galériáján 2018. március 1-én 15,00 órakor ünnepélyes keretek között írták alá a felek az „Aktív pihenőpark kialakítása barnamezős területek rehabilitációjával” elnevezésű, TOP-2.1.1-15-BO1-2016-00002 számon nyilvántartott fejlesztési projekt kivitelezői szerződéseit. Az ünnepélyes aktuson részt vett Demeter Zoltán országgyűlési képviselő is.
A város 30. születésnapja alkalmából rendezett kiállításon két tablósor néz farkasszemet egymással a galérián. Múlt és jövő. Az egyik falon a jó városműködtetés hat kiemelt területének (közigazgatás, egészségügy, oktatás, sport-kultúra, szociális ellátás, és civil élet) fejlődését dokumentáló fotótablók, a másikon pedig a jelenleg már megkezdett fejlesztések (rekreációs szabadidőpark, Generációk kertje, Zöld város, kulturális központ belső udvar) terve. Az utóbbiak mindegyike a jövő generációi számára szeretné vonzóvá tenni Sajószentpétert.
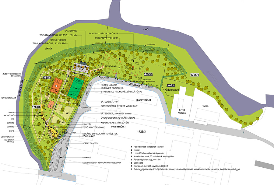
A barnamezős területfejlesztés egyik nem titkolt célja, hogy a város korábbi sebe (remények szerint szépség-) tapasszal gyógyuljon meg. Úgy, ahogyan korábban a kihasználatlan 6. Számú Iskola (ma TSZK) - az előtte lévő területtel -, és a 3. Számú Iskola (Fitt Liget) vált az önkormányzat vállát nyomó teherből büszkeségünkké. A hatósági kötelezéssel terhelt egykori üveggyári lerakó (3,5 hektárnyi, 4-6 méter vastagságú szennyezett hulladékmező) rehabilitációja (40 cm vízzáró agyagréteggel történő lezárása) után kialakított 60 cm vastag új termőréteg már alkalmas lesz növényzet telepítésére. Ezáltal nő a városi zöldfelület nagysága is, amelynek egy része sport-rekreációs park céljaira hasznosul. A projekt részeként mintegy 1 km hosszon felújításra kerül az üveggyári út, csapadékvíz-elvezetéssel és 300 méternyi járdaszakasz is.
Az új létesítmény négy különböző funkciót hordozó zónára osztható. A bejárati csendes pihenőzónában kap helyet a kisgyermekes játszótér és a pihenőliget, amely alkalmas közösségi események lebonyolítására is, a zóna határán, mintegy átmenetként helyezkedik el a szabadtéri fitnesz terület. A második zónában intenzívebb mozgásra szánt területen található a multifunkcionális sportpálya (a felfestések teszik alkalmassá streetball, röplabda, tenisz, és egyéb sportok űzésére). A harmadik, legintenzívebb tevékenységet és legnagyobb zajterhelést hordozó terület (Skate park óriás félcsővel, és kerékpáros ügyességi pálya) a lakóövezettől a lehető legtávolabb kerül. A negyedik zóna egy pihenőpark lesz, a teljes területet az Alacska-patak és a Sajó-holtág irányából lezáró növényzettel intenzíven telepített sáv szegélyezi sétányokkal, pihenő tisztásokkal.
Az önkormányzat, mint új tulajdonos ezt a területet hasznosítani kívánta, de erre önerőből szinte semmi esély nem látszott. 2008-ban megtörtént környezeti állapotfelmérés, és több éves szakmai munka után a miskolci Három Kör Delta Környezetgazdálkodási Kft. által kidolgozott műszaki beavatkozási tervet a felügyelet 2016-ban elfogadta.
Az Integrált Településfejlesztési Stratégiába is bekerült projekten a helyi szakemberek közben párhuzamosan dolgoztak, ez tette lehetővé, hogy amikor 2016-ban lehetőség nyílt a barnamezős területek rehabilitációjára irányuló Európai Unió által támogatott pályázat beadására, a megyében a második legmagasabb összeget nyertük el. A mintegy 674 millió forintról szóló támogatási szerződés 2017. szeptember 26-án került aláírásra.
A majd a PL Építész Stúdió Kft. által kidolgozott kiviteli tervek alapján lefolytatott nyílt közbeszerzésen a nyertes pályázatot a kerítésen belüli munkákra a Takács és Társa Építőipari Kft. (378 MFt összeggel), míg a külső munkákra (üveggyári út felújítása vízelvezetéssel, kerékpársáv kijelölése, nettó 109 MFt összeggel) a MENTO Környezetkultúra Kft. adta.
Az építtető önkormányzat 2019. március 4-én (a kivitelezés időtartama innen számított 330 nap) az építés első fázisához, majd 170 nap elteltével a második fázisához biztosít munkaterületet, a kivitelezési munkák műszaki ellenőrzésének feladatait az Árkád 2005 Kft. látja majd el.
Az eredménye pedig egy év elmúltával remélhetőleg nagyon sok helyi, és környékbeli fiatalnak nyújt lehetőséget az egészséges szabadtéri testmozgáshoz.
Szabadidőpark az üveghegyen (túl)
A Sajószentpéteri Művelődési és Sportközpont galériáján 2018. március 1-én 15,00 órakor ünnepélyes keretek között írták alá a felek az „Aktív pihenőpark kialakítása barnamezős területek rehabilitációjával” elnevezésű, TOP-2.1.1-15-BO1-2016-00002 számon nyilvántartott fejlesztési projekt kivitelezői szerződéseit. Az ünnepélyes aktuson részt vett Demeter Zoltán országgyűlési képviselő is.
A város 30. születésnapja alkalmából rendezett kiállításon két tablósor néz farkasszemet egymással a galérián. Múlt és jövő. Az egyik falon a jó városműködtetés hat kiemelt területének (közigazgatás, egészségügy, oktatás, sport-kultúra, szociális ellátás, és civil élet) fejlődését dokumentáló fotótablók, a másikon pedig a jelenleg már megkezdett fejlesztések (rekreációs szabadidőpark, Generációk kertje, Zöld város, kulturális központ belső udvar) terve. Az utóbbiak mindegyike a jövő generációi számára szeretné vonzóvá tenni Sajószentpétert.
A barnamezős területfejlesztés egyik nem titkolt célja, hogy a város korábbi sebe (remények szerint szépség-) tapasszal gyógyuljon meg. Úgy, ahogyan korábban a kihasználatlan 6. Számú Iskola (ma TSZK) - az előtte lévő területtel -, és a 3. Számú Iskola (Fitt Liget) vált az önkormányzat vállát nyomó teherből büszkeségünkké. A hatósági kötelezéssel terhelt egykori üveggyári lerakó (3,5 hektárnyi, 4-6 méter vastagságú szennyezett hulladékmező) rehabilitációja (40 cm vízzáró agyagréteggel történő lezárása) után kialakított 60 cm vastag új termőréteg már alkalmas lesz növényzet telepítésére. Ezáltal nő a városi zöldfelület nagysága is, amelynek egy része sport-rekreációs park céljaira hasznosul. A projekt részeként mintegy 1 km hosszon felújításra kerül az üveggyári út, csapadékvíz-elvezetéssel és 300 méternyi járdaszakasz is.
Az új létesítmény négy különböző funkciót hordozó zónára osztható. A bejárati csendes pihenőzónában kap helyet a kisgyermekes játszótér és a pihenőliget, amely alkalmas közösségi események lebonyolítására is, a zóna határán, mintegy átmenetként helyezkedik el a szabadtéri fitnesz terület. A második zónában intenzívebb mozgásra szánt területen található a multifunkcionális sportpálya (a felfestések teszik alkalmassá streetball, röplabda, tenisz, és egyéb sportok űzésére). A harmadik, legintenzívebb tevékenységet és legnagyobb zajterhelést hordozó terület (Skate park óriás félcsővel, és kerékpáros ügyességi pálya) a lakóövezettől a lehető legtávolabb kerül. A negyedik zóna egy pihenőpark lesz, a teljes területet az Alacska-patak és a Sajó-holtág irányából lezáró növényzettel intenzíven telepített sáv szegélyezi sétányokkal, pihenő tisztásokkal.
Az önkormányzat, mint új tulajdonos ezt a területet hasznosítani kívánta, de erre önerőből szinte semmi esély nem látszott. 2008-ban megtörtént környezeti állapotfelmérés, és több éves szakmai munka után a miskolci Három Kör Delta Környezetgazdálkodási Kft. által kidolgozott műszaki beavatkozási tervet a felügyelet 2016-ban elfogadta.
Az Integrált Településfejlesztési Stratégiába is bekerült projekten a helyi szakemberek közben párhuzamosan dolgoztak, ez tette lehetővé, hogy amikor 2016-ban lehetőség nyílt a barnamezős területek rehabilitációjára irányuló Európai Unió által támogatott pályázat beadására, a megyében a második legmagasabb összeget nyertük el. A mintegy 674 millió forintról szóló támogatási szerződés 2017. szeptember 26-án került aláírásra.
A majd a PL Építész Stúdió Kft. által kidolgozott kiviteli tervek alapján lefolytatott nyílt közbeszerzésen a nyertes pályázatot a kerítésen belüli munkákra a Takács és Társa Építőipari Kft. (378 MFt összeggel), míg a külső munkákra (üveggyári út felújítása vízelvezetéssel, kerékpársáv kijelölése, nettó 109 MFt összeggel) a MENTO Környezetkultúra Kft. adta.
Az építtető önkormányzat 2019. március 4-én (a kivitelezés időtartama innen számított 330 nap) az építés első fázisához, majd 170 nap elteltével a második fázisához biztosít munkaterületet, a kivitelezési munkák műszaki ellenőrzésének feladatait az Árkád 2005 Kft. látja majd el.
Az eredménye pedig egy év elmúltával remélhetőleg nagyon sok helyi, és környékbeli fiatalnak nyújt lehetőséget az egészséges szabadtéri testmozgáshoz.
Kiss Barnabás
Megosztás Facebook-onVissza